OG-P9M
OFFICE TYPE G-GRADE
標準仕様
Option
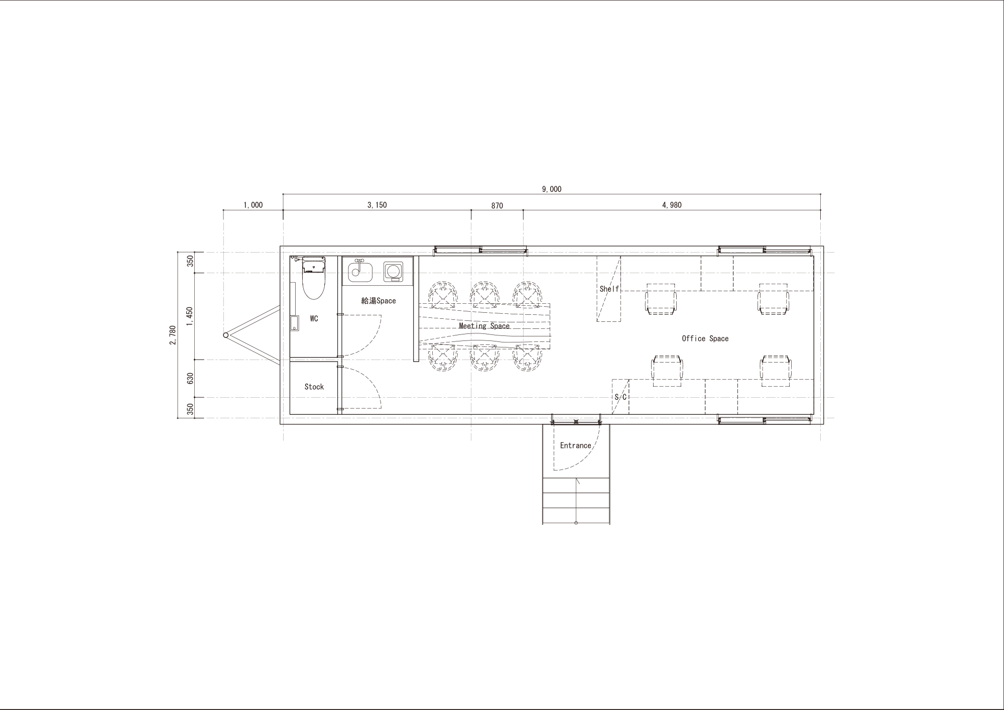
平面図

立体図
サイズによる価格の考え方

※ 上記の価格表は全て税抜価格です。
※ トレーラーハウスの横幅(2.5m・3.5m)によって価格が変わります。
※ 上記の料金表は標準仕様に加え、希望に沿ったオプションを追加していくため、価格帯に幅があります。
Support

トレーラーハウス・コンテナハウスご購入後も安心して利用いただける、万全のアフターサポートをご用意しています。
FAQ
キャンピングカーはエンジンなどの原動機がついた自走できる車両です。トレーラーハウスは原動機がついていないので自走はできません。移動の際はけん引車が必要となります。
トレーラーハウスは建築物ではなく「車両を利用した工作物」に該当し、道路運送車両法に基づき車検の取得が必要になります。普通貨物車8トン未満の場合、初回は2年、次回以降は1年毎の車検となります。
建築確認申請は不要です。設置条件を満たせば、建築物ではなく「車両」としてみなされます。市街化調整区域への設置も原則問題ありませんが、用途や仕様内容により、設置可否を事前に行政に確認してください。
トレーラーハウスは車両扱いのため固定資産税・不動産取得税はありません。しかし、運用や設置方法によっては課税対象になりますのでご相談ください。また、重量税・自動車税などの車両に関わる税金がかかります。
